Skip to content
Work
Current
About
Press
Contact
Instagram
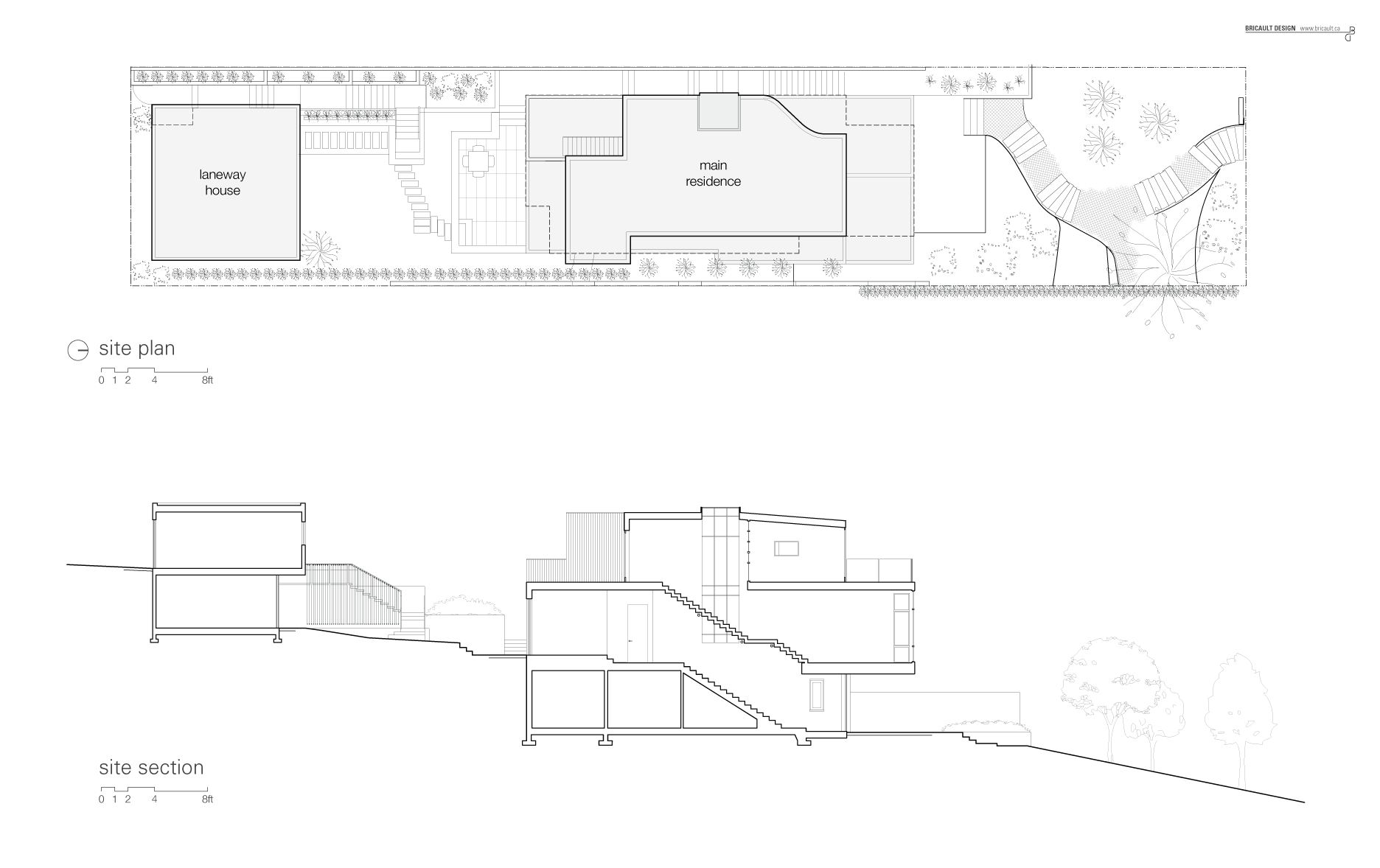
West Third Avenue Residence
Vancouver, BC
2016
back to residential